![]() |

|
|
||||||||||||||||||||||||||||||||||||||||||||||||||||||||||||||||||||||||||||||||||||||||||||||||||||||||||||||||||||||||||||||||||||||||||||||||||||||||||||||||||||||||||||||||||||||||||||||||||||||||||||||||||||||||||||||||||||||||||||||||||||||||||||||||||||||||||||||||||||||
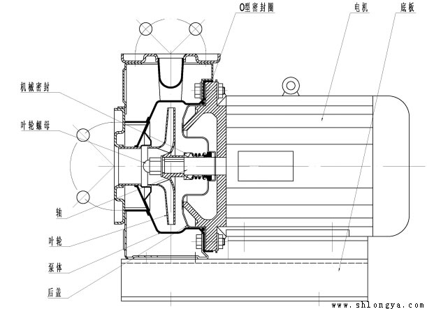
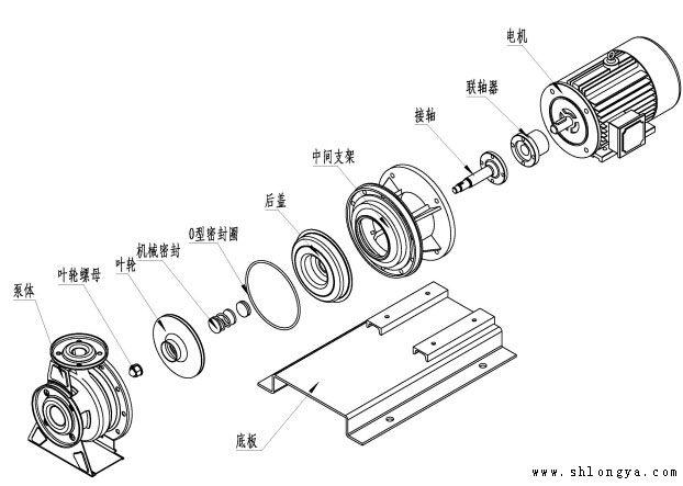
ICB型不銹鋼沖壓離心泵

一、 簡介
ICB型不銹鋼沖壓離心泵是上海龍亞引進RB90年代新技術,采用沖壓、拉伸、彎曲、脹形、整形、焊接、拋光等工藝而制成的單級單吸離心泵。它的問世,開創了水制造業的一場重大變革。
與普通離心泵相比,它具有如下優點:
高效節能 由于采用XJ的水力模型設計,更為科學、合理,而流道更為光潔,因此同比效率高出8%,能耗降低20%以上。
質優價廉 由于該泵耗材省,同比節約75%左右,成本與鑄鐵泵相當,而質量要好于鑄鐵泵。
經久耐用 由于采用硬質機封,而軸承全部采用NTNP,因此泵的壽命同比高出一倍以上。
結構輕巧 該泵的重量僅為鑄鐵泵的1/8,節約空間1/2以上,特別適用于主機配套。
通用性強 ICB(D、J)型有底板沖壓泵采用WB2型外裝式機封,其中ICB(D)泵安裝尺寸與IH型泵完全一致,可以與IH型泵互換。
表面光潔 由于采用特殊表面處理,泵體內外表面光潔如鏡。
噪音更低 采用NTN軸承,流道光潔,噪聲更低。

二、 采用標準
標記性能及尺寸符合GB5662-85標準,等同于ISO2858-77。
進出口法蘭符合GB9119-88標準,技術條件符合GB5657-85標準。
三、 用途
該泵可廣泛應用于油脂、食品、飲料、醫藥衛生、電力、紡織、印染、水處理、環保、樓宇供水、鍋爐給水等行業,輸送溫度不超過180℃的液體介質。
四、 型號說明
例如:ICB(D J)65 – 50 – 160 A

五、 性能參數表
1、 技術參數
流量≤120m3/h、揚程≤60m、功率0.37~11kW
ICB-D帶安裝底板的不銹鋼沖壓離心泵

ICB-J帶安裝底板的不銹鋼沖壓離心泵

2、 性能參數:
|
泵 型 號
|
葉輪
形式
|
流量
M3/h
|
揚程
m
|
轉速
rpm
|
效率
%
|
電機功率
|
汽蝕余量(m)
|
|
|
ICB
|
ICB(D、J)
|
|||||||
|
ICB20-12-125
|
0
|
1.6
|
20
|
2900
|
47
|
0.37
|
|
3.5
|
|
ICB20-12-160
|
0
|
1.6
|
30
|
41
|
0.25
|
|
3.8
|
|
|
A
|
1.2
|
24
|
40
|
0.55
|
|
|||
|
ICB32-25-125
|
0
|
3.2
|
20
|
45
|
0.55
|
|
3.5
|
|
|
ICB32-25-160
|
0
|
3.2
|
30
|
40
|
0.90
|
|
3.8
|
|
|
A
|
2.5
|
24
|
39
|
0.75
|
|
|||
|
ICB40-25-160
|
0
|
8
|
28
|
63
|
1.5
|
|
63
|
|
|
A
|
5
|
25
|
61
|
1.1
|
|
61
|
||
|
ICB50-25-125
|
0
|
6.3
|
20
|
61
|
1.1
|
1.5
|
2.0
|
|
|
A
|
5.0
|
15
|
60
|
1.1
|
1.1
|
|||
|
ICB50-25-160
|
0
|
6.3
|
32
|
57
|
2.2
|
3.0
|
2.0
|
|
|
A
|
5.0
|
25
|
56
|
1.5
|
2.2
|
|||
|
ICB50-25-200
|
0
|
6.3
|
50
|
49
|
4.0
|
5.5
|
2.0
|
|
|
A
|
5.0
|
40
|
48
|
3.0
|
4.0
|
|||
|
ICB50-32-125
|
0
|
12.5
|
20
|
63
|
1.5
|
2.2
|
2.0
|
|
|
A
|
10
|
15
|
62
|
1.1
|
1.5
|
|||
|
ICB50-32-160
|
0
|
12.5
|
32
|
58
|
2.2
|
3.0
|
2.0
|
|
|
A
|
10
|
25
|
57
|
1.5
|
2.2
|
|||
|
ICB50-32-200
|
0
|
12.5
|
50
|
50
|
4.0
|
5.5
|
2.0
|
|
|
A
|
10
|
40
|
49
|
3.0
|
4.0
|
|||
|
ICB65-50-125
|
0
|
25
|
20
|
72
|
2.2
|
3.0
|
2.0
|
|
|
A
|
20
|
15
|
71
|
1.5
|
2.2
|
|||
|
ICB65-50-160
|
0
|
25
|
32
|
70
|
4.0
|
5.5
|
2.0
|
|
|
A
|
20
|
25
|
69
|
3.0
|
4.0
|
|||
|
ICB65-40-200
|
0
|
25
|
50
|
64
|
7.5
|
7.5
|
2.0
|
|
|
A
|
20
|
40
|
63
|
5.5
|
7.5
|
|||
|
ICB80-65-125
|
0
|
50
|
20
|
78
|
4.0
|
5.5
|
2.0
|
|
|
A
|
40
|
15
|
77
|
3.0
|
4.0
|
|||
|
ICB80-65-160
|
0
|
50
|
32
|
75
|
7.5
|
7.5
|
2.0
|
|
|
A
|
40
|
25
|
74
|
5.5
|
7.5
|
|||
|
ICB80-50-200
|
0
|
50
|
50
|
73
|
11
|
15
|
2.0
|
|
|
A
|
40
|
40
|
72
|
9.0
|
11
|
|||
|
ICB100-80-125
|
0
|
100
|
20
|
76
|
9.0
|
11
|
2.0
|
|
|
A
|
80
|
15
|
75
|
7.5
|
7.5
|
|||






七、鈦龍PICB型不銹鋼沖壓離心泵的安裝
1、泵應盡量靠近液源位置,以利于吸液。
2、安裝之前,管路必須清洗干凈。
3、安裝時,吸入管、排出管應與泵進出口法蘭中心重合,泵不能直接承受管路重量。進水管路各接口處不允許漏氣,否則吸不上液體。
4、如果泵的進水口高于液面,則進水管末端應安裝底閥,底閥離水底約30cm,以免吸空或吸入雜物。另外還須在出水口處裝一段高度約40cm的豎直管,作開機前灌水用。
5、在泵的吸入管道上應安裝進口閥,在排出管路上安裝壓力表和調節閥。
6、使用口徑在65mm以上的泵,在進口或出口處務必裝上止回閥,以免停機時液體倒灌損壞水泵。